Page 151 - TS5_3.0
P. 151
3 842 540 379 (2015.10) TS 5 3.0 Bosch Rexroth AG 13–39
Technische Daten
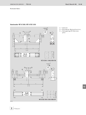
Vereinzeler VE 5/200; VE 5/OC-200
6 A = Vereinzeler
B B = Pneumatischer Steckanschluss 6 mm 1
35 35 C = Stellungsabfrage VE-Klinke oben:
C ja/nein
2
A 3
4
= = 5
b -10
6
b = b WT
7
VE 5/200: 3 842 998 518
8
6
B
35 35 9
C
A 10
11
12
= =
b -10
13
14
b = b WT 15
VE 5/OC-200: 3 842 998 577
16
00137470
F2 6-6, 9-7

