Page 11 - TS1_5.4
P. 11
3 842 528 596 (2018-02) TS 1 5.4 Bosch Rexroth AG 1–7
Eigenschaften TS 1 · TS 1 features · Caractéristiques TS 1
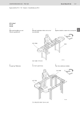
WT-Umlauf
Circuit
Circuit
Minimaler Installations- und Minimal installation effort and control Système facile à monter et à commander 1
Steuerungsaufwand requirements
2
3
KU 1/360 4
SZ 1
5
6
7
KU 1/360 4-10 8
Für geringe Taktzeiten For short cycle times Pour des cadences réduites 9
10
CU 1/90
11
12
KU 1/90
13
14
15
16
17
CU 1/90, KU 1/90 4-4, 4-6

