Page 55 - TS4_3.2
P. 55
3 842 527 530 (2014-07) TS 4plus Bosch Rexroth AG 4–5
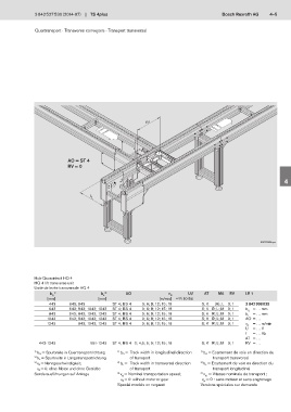
Quertransport · Transverse conveyors · Transport transversal
1
b Q
2
AO = ST 4 3
RV = 0
4
b
L
5
6
00013065.eps
7
8
Hub-Quereinheit HQ 4
HQ 4 lift transverse unit
Unité de levée transversale HQ 4 9
b 1) b 2) AO v U,f AT MA RV LE 1
Q L N
[mm] [mm] [m/min] F2 10-54
443 643; 843 ST 4; BS 4 0; 6; 9; 12; 15; 18 S; K (R); L 0; 1 3 842 998 035
643 643; 843; 1043; 1243 ST 4; BS 4 0; 6; 9; 12; 15; 18 S; K R; L; M 0; 1 b Q = … mm 10
843 643; 843; 1043; 1243 ST 4; BS 4 0; 6; 9; 12; 15; 18 S; K R; L; M 0; 1 b L = … mm
1043 643; 843; 1043; 1243 ST 4; BS 4 0; 6; 9; 12; 15; 18 S; K R; L; M 0; 1 AO = …
1243 843; 1043; 1243 ST 4; BS 4 0; 6; 9; 12; 15; 18 S; K R; L; M 0; 1 v N = … m/min
U = … V
f = … Hz 11
AT = …
443-1243 551-1243 ST 4; BS 4 0; 4,5; 6; 9; 12; 15; 18 S; K R; L; M 0; 1 RV = …
1) b Q = Spurbreite in Quertransportrichtung 1) b Q = Track width in longitudinal direction 1) b Q = Ecartement de voie en direction du 12
2) b L = Spurbreite in Längstransportrichtung of transport transport transversal
3) = Nenngeschwindigkeit; 2) b L = Track width in transversal direction 2) b L = Ecartement de voie en direction du
v N
= 0: ohne Motor und ohne Getriebe of transport transport longitudinal
v N
Sonderausführungen auf Anfrage 3) v = Nominal transportation speed; 3) v = Vitesse nominale de transport ;
N N
= 0: without motor or gear v = 0 : sans moteur et sans engrenage
v N N
Special models on request Versions spéciales sur demande

