Page 604 - TS2plus_8
P. 604

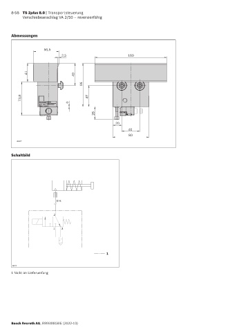
8-58 TS 2plus 8.0 | Transportsteuerung
            Verschiebeanschlag VA 2/50 ‒ reversierfähig




      Abmessungen


                      56,5
                               2,5                            160



              41                     49

                                         96


           73,8                            47
                                  0

                                              28

                                                        20
                                                               40
                                                               80
         40307


      Schaltbild











                            D 6



                           2


                           1   3





                                                    1


       34273
      1 Nicht im Lieferumfang













      Bosch Rexroth AG, R999000395 (2022-10)
   599   600   601   602   603   604   605   606   607   608   609