Page 329 - TS2Plus7.0
P. 329
Kurven | TS 2plus 7.0 4-11
Kurve KE 2/90
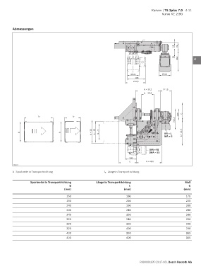
Abmessungen
1
2
19 91
3
32 204 4
5
Ø121 Ø121
185 6
222,5
7
b + 39,2 121,5
b – 99,2
8
9
130 C 10
l T l T
222,5
11
b + 15 b – 55 b – 5
b b KR = L KR = L b + 45,5 12
KR = R MA = S
13
(KR = R)
(MA = S) 14
130
C b + 45,5 15
00012771
b Spurbreite in Transportrichtung l T Länge in Transportrichtung 16
Spurbreite in Transportrichtung Länge in Transportrichtung Maß 17
b l T C
(mm) (mm) (mm)
18
160 160 170
160 240 225 19
240 160 200
240 240 200 20
240 320 200
320 240 290 21
320 320 290
320 400 290 22
400 320 355
400 400 355 23
24
R999000395 (2017-08), Bosch Rexroth AG

